おすすめポイント

大阪メトロ御堂筋線「本町駅」徒歩5分の立地に位置するビル。全面ガラス張りで丸く突き出た窓が特徴的な外観で、視認性が高いビルとなっています。9階にコワーキングスペースが設置されており、テナント向けに会議室の貸出を行っています。設備としてはエレベーターが2基あり駐車場が併設されているため、荷物の出し入れが多い方にもおすすめです。
- この物件の賃料の価格帯(共益費込)
- @8,001円/坪~@12,000円/坪
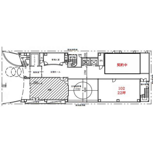
- 坪数(m2)
- 22坪(72.73m²)
※賃料はこの物件の価格帯を表示しています。保証金・賃料等の交渉目安はご相談ください!
ストリートビューを表示 ▼
物件概要 アイコンについて
| 物件名 | 第一住建南久宝寺町 | ||
|---|---|---|---|
| 住所 | 大阪府大阪市中央区南久宝寺町3丁目2番7号 | ||
| 構造 (規模) | 鉄骨造地上10階建 | ||
| 坪数 | 22坪(72.73m²) | 築年月 | 1991年3月1日 |
| 階数 | 1階 | 空調タイプ | 個別 |
| 保証金 | - | ||
| 敷金 | 賃料の5カ月分 | 礼金 | 賃料の1カ月分 |
| 沿線・最寄駅 |
地下鉄御堂筋線 本町駅 徒歩5分 地下鉄中央線 本町駅 徒歩5分 地下鉄堺筋線 堺筋本町駅 徒歩6分 |
||
| アクセス |
新大阪駅まで電車18分 大阪駅梅田駅まで電車12分 関西空港まで電車53分、車46分 伊丹空港まで車20分 高速入口:環状線信濃橋・阿波座・長堀 入口 |
||
| 設備詳細 |
|
||
| EV基数 | 2基 | 人荷EV基数 | - |
| こだわり条件 |
|
||
| 備考 | |||




