おすすめポイント

「文化、国際、情報化の拠点」である大阪・西梅田地区開発のトップを切って誕生したインテリジェントビル。毎日新聞大阪本社が入っていることから、選抜高校野球の選考会・組み合わせ抽選会を同ビルのホールで行うことも。地上16階建て、ワンフロア450坪を超える大型ビルで、企業イメージのアップにもつながります。
- この物件の賃料の価格帯(共益費込)
- @15,001円/坪~@20,000円/坪
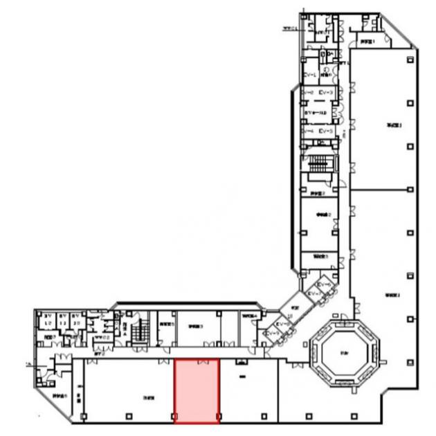
- 坪数(m2)
- 23.35坪(77.19m²)
※賃料はこの物件の価格帯を表示しています。保証金・賃料等の交渉目安はご相談ください!
ストリートビューを表示 ▼
物件概要 アイコンについて
| 物件名 | 毎日新聞 | ||
|---|---|---|---|
| 住所 | 大阪府大阪市北区梅田3丁目4番5号 | ||
| 構造 (規模) | 鉄骨鉄筋コンクリート造地上16階地下2階建 | ||
| 坪数 | 23.35坪(77.19m²) | 築年月 | 1992年11月1日 |
| 階数 | 5階 | 空調タイプ | 集中 |
| 保証金 | - | ||
| 敷金 | 賃料の12カ月分 | 礼金 | - |
| 沿線・最寄駅 |
地下鉄四つ橋線 西梅田駅 徒歩5分 JR東西線 北新地駅 徒歩5分 JR大阪環状線 福島駅 徒歩5分 |
||
| アクセス |
新大阪駅まで電車14分 大阪駅梅田駅まで電車8分 関西空港まで電車62分、車45分 伊丹空港まで車20分 高速入口:環状線梅田・堂島入口 |
||
| 設備詳細 |
|
||
| EV基数 | 6基 | 人荷EV基数 | 1基 |
| こだわり条件 |
|
||
| 備考 | |||
毎日新聞のその他の募集階
| 階数 | 坪数 (m²数) |
賃料の価格帯 | 保証金 | 敷金 礼金 |
|
|---|---|---|---|---|---|
| 6階 |
18.01坪 (59.54m²) |
@15,001円/坪 ~@20,000円/坪 |
- | 賃料の12カ月分 - |
部屋詳細 |
| 8階 |
23.35坪 (77.19m²) |
@15,001円/坪 ~@20,000円/坪 |
- | 賃料の12カ月分 - |
部屋詳細 |
| 4階 |
23.35坪 (77.19m²) |
@15,001円/坪 ~@20,000円/坪 |
- | 賃料の12カ月分 - |
部屋詳細 |
| 2階 |
14.57坪 (48.17m²) |
@15,001円/坪 ~@20,000円/坪 |
- | 賃料の12カ月分 - |
部屋詳細 |
※賃料はこの物件の価格帯を表示しています。詳しい情報は電話・メールでお問い合わせください!




