HOME > 大型ビル貸事務所一覧 > 大阪写真会館

大阪写真会館/5階 7.08坪

物件番号:#A205233

物件一覧に戻る

おすすめポイント

心斎橋エリアのレトロ物件。館内には貸会議室や貸倉庫、貸ギャラリーもあるユニークなビルです。1階にはオフィス家具の販売店が入居しているので備品購入の際は大変便利です。また、プロジェクターやホワイトボードなどの貸出もしていただけます。

この物件を問い合わせる

物件のお問い合わせはこちら

0120-366-200
物件番号:#A205233

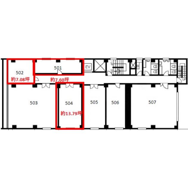
間取り図


※クリックすると間取り図が拡大します。

この物件の賃料の価格帯(共益費込)
@12,001円/坪~@15,000円/坪
坪数(m2
7.08坪(23.40m²)

※賃料はこの物件の価格帯を表示しています。保証金・賃料等の交渉目安はご相談ください!

ストリートビューを表示 ▼

物件概要 アイコンについて

物件名 大阪写真会館
住所 大阪府大阪市中央区南船場2丁目7番14号
構造 (規模) 鉄筋コンクリート造地上6階地下1階建
坪数 7.08坪(23.40m²) 築年月 1963年1月1日
階数 5階 空調タイプ 個別
保証金
敷金 賃料の4カ月分 礼金
沿線・最寄駅 地下鉄堺筋線 長堀橋駅 徒歩3分
地下鉄長堀鶴見緑地線 長堀橋駅 徒歩3分
地下鉄御堂筋線 心斎橋駅 徒歩5分
アクセス 新大阪駅まで電車18分
大阪駅梅田駅まで電車12分
関西空港まで電車50分、車50分
伊丹空港まで車25分
高速入口:環状線長堀入口
設備詳細
  • セキュリティ
  • OAフロア
  • 駐車場
  • 駐輪場
  • 光ケーブル
  • エレベーター
  • 人荷用EV
  • 天井高2.6m以上
  • シャワートイレ
  • 室内水周り
  • オートロック
  • 貸会議室
  • 喫煙スペース
  • 休憩コーナー
  • 非常用電源
EV基数 1基 人荷EV基数
こだわり条件
  • 駅上・駅近(2分以内)物件
  • 大通り沿い
  • Aクラス(基準階面積200坪以上のHG物件)
  • 新築(築5年以内)
  • 築浅(築5~10年以内)
  • 大型物件(基準階面積100坪以上)
  • デザイナーズ・レトロ・個性派物件
  • 1フロア1テナント
  • 1棟貸し・セット貸し物件
  • 保証金・敷金0or格安物件
  • 賃料に空調費込む物件
  • SOHO・マンションオフィス
  • 空中店舗可能物件
  • 新耐震・新耐震基準適合
  • 免震・制震・耐震対策物件
  • 非常用電源対策物件
  • 省エネ・環境対策物件
  • 高層ビル(20階建以上)
  • 大型駐車場完備
  • 駐輪場完備
  • 貸会議室完備
  • 休憩コーナー完備
  • 喫煙スペース
備考

この物件の詳しい情報を見る >

大阪写真会館のその他の募集階

階数 坪数
(m²数)
賃料の価格帯 保証金 敷金
礼金
5階 13.79坪
(45.59m²)
@12,001円/坪
~@15,000円/坪
賃料の4カ月分
部屋詳細
5階 7.6坪
(25.12m²)
@12,001円/坪
~@15,000円/坪
賃料の4カ月分
部屋詳細

※賃料はこの物件の価格帯を表示しています。詳しい情報は電話・メールでお問い合わせください!

オフィス移転サポート情報

平日13時までのお問い合せで当日ご提案可能!

© 貸ビル情報 All rights reserved.