おすすめポイント

新大阪駅から徒歩圏内。新御堂筋沿いに建ち、上品なモダンテイストのファサードが印象的なオフィスビル。 ゆったりとしたエントランスがラグジュアリーなビジネスライフを演出します。 区画は約17坪からワンフロア112坪まで幅広く対応できます。また、立体駐車場だけでなく平面駐車場も併設しているため、ハイルーフ車を使用されるお客様にもおすすめです。
- この物件の賃料の価格帯(共益費込)
- @12,001円/坪~@15,000円/坪
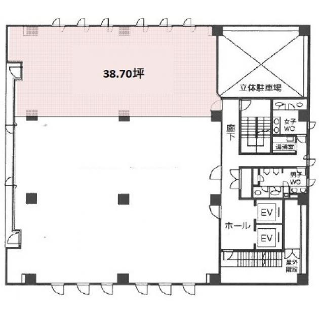
- 坪数(m2)
- 38.7坪(127.93m²)
※賃料はこの物件の価格帯を表示しています。保証金・賃料等の交渉目安はご相談ください!
ストリートビューを表示 ▼
物件概要 アイコンについて
| 物件名 | 中尾ロイヤル | ||
|---|---|---|---|
| 住所 | 大阪府大阪市淀川区宮原2丁目14番10号 | ||
| 構造 (規模) | 鉄骨鉄筋コンクリート造一部鉄筋コンクリート造地上9階建 | ||
| 坪数 | 38.7坪(127.93m²) | 築年月 | 1986年1月1日 |
| 階数 | 9階 | 空調タイプ | 個別 |
| 保証金 | 総額5,805,000円(@150,000円/坪) | ||
| 敷金 | - | 礼金 | - |
| 沿線・最寄駅 |
地下鉄御堂筋線 東三国駅 徒歩3分 地下鉄御堂筋線 新大阪駅 徒歩6分 JR東海道本線 新大阪駅 徒歩6分 |
||
| アクセス |
新大阪駅まで電車6分 大阪駅梅田駅まで電車8分 関西空港まで電車63分、車50分 伊丹空港まで車20分 高速入口:11号線加島入口 |
||
| 設備詳細 |
|
||
| EV基数 | 2基 | 人荷EV基数 | - |
| こだわり条件 |
|
||
| 備考 | 重厚感のあるたたずまい。駐車場は平面と機械式立体があり、社用車のある企業様にも人気です。 基準階面積約112坪、17坪前後から分割対応可能です。 |
||
中尾ロイヤルのその他の募集階
| 階数 | 坪数 (m²数) |
賃料の価格帯 | 保証金 | 敷金 礼金 |
|---|
※賃料はこの物件の価格帯を表示しています。詳しい情報は電話・メールでお問い合わせください!




