おすすめポイント

御堂筋本町駅交差点の南西角に位置するロケーションの良いビルです。大阪ビジネス街のど真ん中ストライクにあるオフィスビルです。また、免震対策物件ですので、地震にも強く安心して頂けます。
- この物件の賃料の価格帯(共益費込)
- 相談
- 坪数(m2)
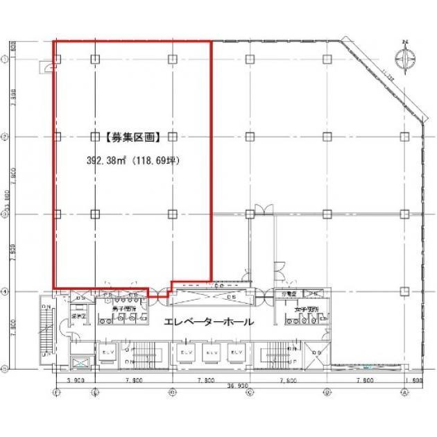
- 118.69坪(392.36m²)
※賃料はこの物件の価格帯を表示しています。保証金・賃料等の交渉目安はご相談ください!
ストリートビューを表示 ▼
物件概要 アイコンについて
| 物件名 | 野村不動産御堂筋本町(旧東芝大阪) | ||
|---|---|---|---|
| 住所 | 大阪府大阪市中央区本町4丁目2番12号 | ||
| 構造 (規模) | 鉄骨鉄筋コンクリート造地上9階地下4階建 | ||
| 坪数 | 118.69坪(392.36m²) | 築年月 | 1965年10月1日 |
| 階数 | 7階 | 空調タイプ | 個別 |
| 保証金 | - | ||
| 敷金 | 相談 | 礼金 | - |
| 沿線・最寄駅 |
地下鉄御堂筋線 本町駅 徒歩1分 地下鉄中央線 本町駅 徒歩2分 地下鉄四つ橋線 本町駅 徒歩4分 |
||
| アクセス |
新大阪駅まで電車19分 大阪駅梅田駅まで電車13分 関西空港まで電車48分、車53分 伊丹空港まで車23分 高速入口:環状線信濃橋・阿波座 |
||
| 設備詳細 |
|
||
| EV基数 | 4基 | 人荷EV基数 | - |
| こだわり条件 |
|
||
| 備考 | |||




