おすすめポイント

大阪メトロ御堂筋線「新大阪駅」徒歩3分の立地に位置するビル。エントランスは吹き抜けで床・壁は白を基調としており、清潔感があります。基準階面積約175坪の貸室は約27坪~分割が可能で、貸室は無柱空間で使い勝手がよく設備も充実しています。
- この物件の賃料の価格帯(共益費込)
- @12,001円/坪~@15,000円/坪
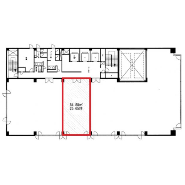
- 坪数(m2)
- 25.65坪(84.79m²)
※賃料はこの物件の価格帯を表示しています。保証金・賃料等の交渉目安はご相談ください!
ストリートビューを表示 ▼
物件概要 アイコンについて
| 物件名 | KDX新大阪 | ||
|---|---|---|---|
| 住所 | 大阪府大阪市淀川区宮原4丁目1番4号 | ||
| 構造 (規模) | 鉄骨鉄筋コンクリート造地上11階地下1階建 | ||
| 坪数 | 25.65坪(84.79m²) | 築年月 | 1992年5月30日 |
| 階数 | 5階 | 空調タイプ | 個別 |
| 保証金 | - | ||
| 敷金 | 賃料の12カ月分 | 礼金 | - |
| 沿線・最寄駅 |
地下鉄御堂筋線 新大阪駅 徒歩3分 地下鉄御堂筋線 東三国駅 徒歩8分 JR東海道本線 新大阪駅 徒歩4分 |
||
| アクセス |
新大阪駅まで電車3分 大阪駅梅田駅まで電車7分 関西空港まで電車64分、車50分 伊丹空港まで車20分 高速入口:11号線加島入口 |
||
| 設備詳細 |
|
||
| EV基数 | 2基 | 人荷EV基数 | 1基 |
| こだわり条件 |
|
||
| 備考 | |||
KDX新大阪のその他の募集階
| 階数 | 坪数 (m²数) |
賃料の価格帯 | 保証金 | 敷金 礼金 |
|---|
※賃料はこの物件の価格帯を表示しています。詳しい情報は電話・メールでお問い合わせください!




