おすすめポイント

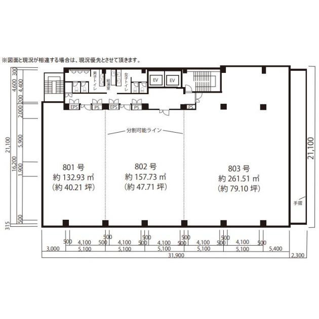
堺筋本町から徒歩3分の好立地で長堀橋までも徒歩圏内。ビル設備も個別空調、機械警備、OAフロアなど充実の設備が魅力的なオフィスビル。。基準階約200坪の貸室面積、20~30坪台への分割対応も可能です。天井高2,900mmあり開放感のある貸室がご提供できます。
こちらは空室ではございません。
※賃料はこの物件の価格帯を表示しています。保証金・賃料等の交渉目安はご相談ください!
ストリートビューを表示 ▼
物件概要 アイコンについて
| 物件名 | SC堺筋本町 | ||
|---|---|---|---|
| 住所 | 大阪府大阪市中央区北久宝寺町1丁目4番15号 | ||
| 構造 (規模) | 鉄骨・鉄筋コンクリート造地上9階建 | ||
| 坪数 | 79.1坪(261.49m²) | 築年月 | 1998年3月1日 | 
| 階数 | 8階 | 空調タイプ | 個別 | 
| 保証金 | - | ||
| 敷金 | 相談 | 礼金 | - | 
| 沿線・最寄駅 | 
                                                                    地下鉄堺筋線 堺筋本町駅 徒歩4分 地下鉄中央線 堺筋本町駅 徒歩4分 地下鉄御堂筋線 本町駅 徒歩9分  | 
                        ||
| アクセス | 
                                新大阪駅まで電車18分                                 大阪駅梅田駅まで電車12分 関西空港まで電車55分、車48分 伊丹空港まで車20分 高速入口:環状線信濃橋・阿波座・長堀 入口  | 
                        ||
| 設備詳細 | 
                                 | 
                        ||
| EV基数 | 2基 | 人荷EV基数 | - | 
| こだわり条件 | 
                                 | 
                        ||
| 備考 | |||




