おすすめポイント

交通ターミナルの優れたロケーションと機能的で効率の良いワークスペースを兼ね備え、難波の新たなランドマークとなる次世代オフィスビル。
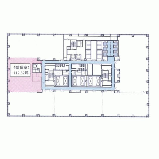
- この物件の賃料の価格帯(共益費込)
- @15,001円/坪~@20,000円/坪
- 坪数(m2)
- 112.32坪(371.31m²)
※賃料はこの物件の価格帯を表示しています。保証金・賃料等の交渉目安はご相談ください!
ストリートビューを表示 ▼
物件概要 アイコンについて
| 物件名 | マルイト難波 | ||
|---|---|---|---|
| 住所 | 大阪府大阪市浪速区湊町1丁目2番3号 | ||
| 構造 (規模) | 鉄骨鉄筋コンクリート造地上31階地下1階建 | ||
| 坪数 | 112.32坪(371.31m²) | 築年月 | 2009年8月1日 |
| 階数 | 9階 | 空調タイプ | 個別 |
| 保証金 | - | ||
| 敷金 | 賃料の12カ月分 | 礼金 | - |
| 沿線・最寄駅 |
JR大和路線 JR難波駅 徒歩1分 地下鉄四つ橋線 なんば駅 徒歩3分 近鉄線 大阪難波駅 徒歩3分 |
||
| アクセス |
新大阪駅まで電車15分 大阪駅梅田駅まで電車10分 関西空港まで電車50分、車36分 伊丹空港まで車17分 高速入口:環状線汐見橋・湊町 |
||
| 設備詳細 |
|
||
| EV基数 | 10基 | 人荷EV基数 | 2基 |
| こだわり条件 |
|
||
| 備考 | |||
マルイト難波のその他の募集階
| 階数 | 坪数 (m²数) |
賃料の価格帯 | 保証金 | 敷金 礼金 |
|---|
※賃料はこの物件の価格帯を表示しています。詳しい情報は電話・メールでお問い合わせください!




