おすすめポイント

四ツ橋筋に面する角地に東と南にオープンスペースを確保し、堂々たる立ち姿は、周辺に新しいビルが建設されても、ひけを取らない老舗のランドマークです。空調、機械警備、OAフロアなど、時代に対応し不自由のないオフィス環境を整えています。公開空地に設けられた、手入れの行き届いた広葉樹がまた、行き交う人の忙しい毎日に安らぎを与えてくれます。【地下は店舗区画となっております】
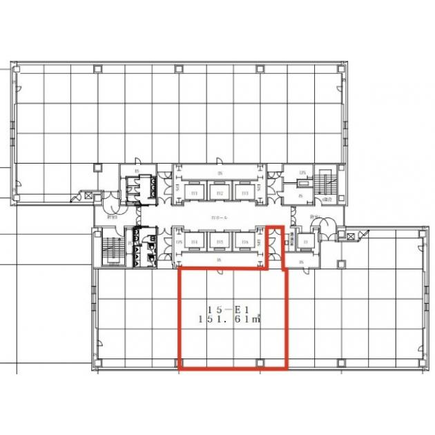
- この物件の賃料の価格帯(共益費込)
- @20,001円/坪~@30,000円/坪
- 坪数(m2)
- 45.86坪(151.60m²)
※賃料はこの物件の価格帯を表示しています。保証金・賃料等の交渉目安はご相談ください!
ストリートビューを表示 ▼
物件概要 アイコンについて
| 物件名 | 近鉄堂島 | ||
|---|---|---|---|
| 住所 | 大阪府大阪市北区堂島2丁目2番2号 | ||
| 構造 (規模) | 鉄骨・鉄骨鉄筋コンクリート・鉄筋コンクリート造地上21階地下2階建 | ||
| 坪数 | 45.86坪(151.60m²) | 築年月 | 1983年1月1日 |
| 階数 | 15階 | 空調タイプ | 集中+個別 |
| 保証金 | - | ||
| 敷金 | 賃料の12カ月分 | 礼金 | - |
| 沿線・最寄駅 |
地下鉄四つ橋線 西梅田駅 徒歩4分 JR東西線 北新地駅 徒歩3分 京阪線(本線・中之島線) 渡辺橋駅 徒歩3分 |
||
| アクセス |
新大阪駅まで電車14分 大阪駅梅田駅まで電車8分 関西空港まで電車59分、車45分 伊丹空港まで車20分 高速入口:環状線堂島・梅田入口 |
||
| 設備詳細 |
|
||
| EV基数 | 6基 | 人荷EV基数 | 1基 |
| こだわり条件 |
|
||
| 備考 | 基準階面積約304坪の大型ビル。四ツ橋筋に面し、大阪メトロ四つ橋線「西梅田」駅とJR東西線「北新地」駅から地下道で直結しています。セントラル空調と個別空調の併用で空調費用の効率の良い仕様となっております。 | ||
近鉄堂島のその他の募集階
| 階数 | 坪数 (m²数) |
賃料の価格帯 | 保証金 | 敷金 礼金 |
|---|
※賃料はこの物件の価格帯を表示しています。詳しい情報は電話・メールでお問い合わせください!




