おすすめポイント

中央大通りの落ち着いたビル。上層階だと大阪のオフィス街の眺望が広がります。
- この物件の賃料の価格帯(共益費込)
- @12,001円/坪~@15,000円/坪
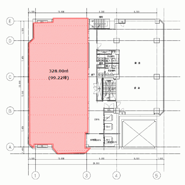
- 坪数(m2)
- 99.22坪(328.00m²)
※賃料はこの物件の価格帯を表示しています。保証金・賃料等の交渉目安はご相談ください!
ストリートビューを表示 ▼
物件概要 アイコンについて
| 物件名 | NANKAI西本町(旧いちご西本町) | ||
|---|---|---|---|
| 住所 | 大阪府大阪市西区阿波座2丁目2番18号 | ||
| 構造 (規模) | 鉄骨鉄筋コンクリート造地上14階建 | ||
| 坪数 | 99.22坪(328.00m²) | 築年月 | 1990年10月1日 |
| 階数 | 3階 | 空調タイプ | 集中 |
| 保証金 | - | ||
| 敷金 | 賃料の12カ月分 | 礼金 | - |
| 沿線・最寄駅 |
地下鉄四つ橋線 本町駅 徒歩5分 地下鉄千日前線 阿波座駅 徒歩3分 地下鉄御堂筋線 本町駅 徒歩6分 |
||
| アクセス |
新大阪駅まで電車20分 大阪駅梅田駅まで電車14分 関西空港まで電車57分、車45分 伊丹空港まで車20分 高速入口:環状線信濃橋・阿波座入口 |
||
| 設備詳細 |
|
||
| EV基数 | 2基 | 人荷EV基数 | 1基 |
| こだわり条件 |
|
||
| 備考 | |||




