おすすめポイント

四ツ橋筋と中央大通りの交差点の好立地。
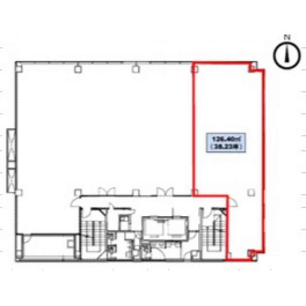
- この物件の賃料の価格帯(共益費込)
- @12,001円/坪~@15,000円/坪
- 坪数(m2)
- 50.78坪(167.87m²)
※賃料はこの物件の価格帯を表示しています。保証金・賃料等の交渉目安はご相談ください!
ストリートビューを表示 ▼
物件概要 アイコンについて
| 物件名 | JMFビル西本町01(旧MID西本町) | ||
|---|---|---|---|
| 住所 | 大阪府大阪市西区阿波座1丁目6番1号 | ||
| 構造 (規模) | 鉄骨・鉄筋コンクリート造地上9階地下3階建 | ||
| 坪数 | 50.78坪(167.87m²) | 築年月 | 1989年5月1日 |
| 階数 | 8階 | 空調タイプ | 個別 |
| 保証金 | - | ||
| 敷金 | 賃料の12カ月分 | 礼金 | - |
| 沿線・最寄駅 |
地下鉄四つ橋線 本町駅 徒歩1分 地下鉄中央線 本町駅 徒歩2分 地下鉄御堂筋線 本町駅 徒歩3分 |
||
| アクセス |
新大阪駅まで電車15分 大阪駅梅田駅まで電車9分 関西空港まで電車56分、車45分 伊丹空港まで車20分 高速入口:環状線信濃橋・阿波座入口 |
||
| 設備詳細 |
|
||
| EV基数 | 2基 | 人荷EV基数 | - |
| こだわり条件 |
|
||
| 備考 | |||
JMFビル西本町01(旧MID西本町)のその他の募集階
| 階数 | 坪数 (m²数) |
賃料の価格帯 | 保証金 | 敷金 礼金 |
|---|
※賃料はこの物件の価格帯を表示しています。詳しい情報は電話・メールでお問い合わせください!




