おすすめポイント

御堂筋の難波交差点角に立地するハイグレード大型ビル。駅直結!!
- この物件の賃料の価格帯(共益費込)
- @20,001円/坪~@30,000円/坪
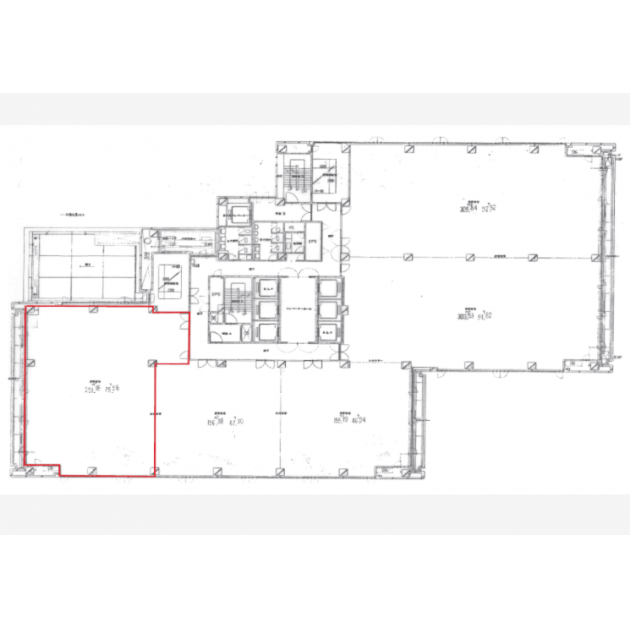
- 坪数(m2)
- 75.98坪(251.17m²)
※賃料はこの物件の価格帯を表示しています。保証金・賃料等の交渉目安はご相談ください!
ストリートビューを表示 ▼
物件概要 アイコンについて
| 物件名 | 御堂筋グランド | ||
|---|---|---|---|
| 住所 | 大阪府大阪市中央区難波2丁目2番3号 | ||
| 構造 (規模) | 鉄骨鉄筋コンクリート造地上15階地下1階建 | ||
| 坪数 | 75.98坪(251.17m²) | 築年月 | 1989年1月1日 |
| 階数 | 14階 | 空調タイプ | 集中+個別 |
| 保証金 | - | ||
| 敷金 | 相談 | 礼金 | - |
| 沿線・最寄駅 |
地下鉄御堂筋線 なんば駅 徒歩1分 地下鉄千日前線 なんば駅 徒歩1分 近鉄線 大阪難波駅 徒歩1分 |
||
| アクセス |
新大阪駅まで電車15分 大阪駅梅田駅まで電車9分 関西空港まで電車45分、車45分 伊丹空港まで車20分 高速入口:環状線湊町入口 |
||
| 設備詳細 |
|
||
| EV基数 | 7基 | 人荷EV基数 | - |
| こだわり条件 |
|
||
| 備考 | |||
御堂筋グランドのその他の募集階
| 階数 | 坪数 (m²数) |
賃料の価格帯 | 保証金 | 敷金 礼金 |
|---|
※賃料はこの物件の価格帯を表示しています。詳しい情報は電話・メールでお問い合わせください!




