おすすめポイント

御堂筋沿いに面したイニシャルコスト・ランニングコスト共に格安の物件です。空中店舗も可能。視認性も良好です。更に共用部リノベーション工事も完了してます。
- この物件の賃料の価格帯(共益費込)
- @15,001円/坪~@20,000円/坪
- 坪数(m2)
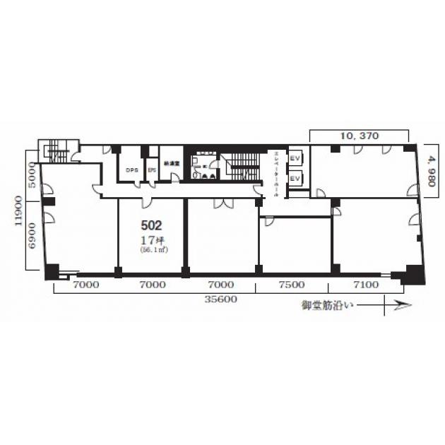
- 17坪(56.20m²)
※賃料はこの物件の価格帯を表示しています。保証金・賃料等の交渉目安はご相談ください!
ストリートビューを表示 ▼
物件概要 アイコンについて
| 物件名 | 難波日興 | ||
|---|---|---|---|
| 住所 | 大阪府大阪市中央区西心斎橋2丁目4番2号 | ||
| 構造 (規模) | 鉄骨鉄筋コンクリート造地上9階地下1階建 | ||
| 坪数 | 17坪(56.20m²) | 築年月 | 1982年4月1日 |
| 階数 | 5階 | 空調タイプ | 集中 |
| 保証金 | - | ||
| 敷金 | - | 礼金 | 賃料の1カ月分 |
| 沿線・最寄駅 |
地下鉄御堂筋線 なんば駅 徒歩5分 地下鉄御堂筋線 心斎橋駅 徒歩6分 近鉄線 大阪難波駅 徒歩5分 |
||
| アクセス |
新大阪駅まで電車18分 大阪駅梅田駅まで電車12分 関西空港まで電車50分、車45分 伊丹空港まで車20分 高速入口:環状線四ツ橋・湊町入口 |
||
| 設備詳細 |
|
||
| EV基数 | 2基 | 人荷EV基数 | - |
| こだわり条件 |
|
||
| 備考 | |||
難波日興のその他の募集階
| 階数 | 坪数 (m²数) |
賃料の価格帯 | 保証金 | 敷金 礼金 |
|---|
※賃料はこの物件の価格帯を表示しています。詳しい情報は電話・メールでお問い合わせください!




