おすすめポイント

堺筋沿いのレトロなシンボリックビル。竣工は昭和28年と古い建物ですが、造りがしっかりしているため数多くの災害にもビクともしないビルです。また、管理もしっかりされています。立地は堺筋沿いに面しており、堺筋本町駅の12番出口から徒歩1分、視認性もあり利便性は申し分ないです。
- この物件の賃料の価格帯(共益費込)
- @8,001円/坪~@12,000円/坪
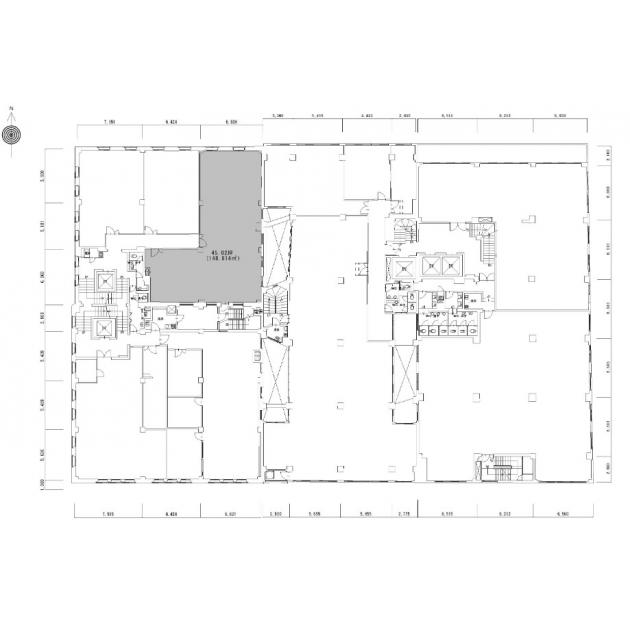
- 坪数(m2)
- 45.02坪(148.83m²)
※賃料はこの物件の価格帯を表示しています。保証金・賃料等の交渉目安はご相談ください!
ストリートビューを表示 ▼
物件概要 アイコンについて
| 物件名 | トヤマ本館 | ||
|---|---|---|---|
| 住所 | 大阪府大阪市中央区安土町1丁目7番13号 | ||
| 構造 (規模) | 鉄筋コンクリート造地上9階地下1階建 | ||
| 坪数 | 45.02坪(148.83m²) | 築年月 | 1953年1月1日 |
| 階数 | 6階 | 空調タイプ | 個別 |
| 保証金 | 相談 | ||
| 敷金 | - | 礼金 | - |
| 沿線・最寄駅 |
地下鉄堺筋線 堺筋本町駅 徒歩1分 地下鉄中央線 堺筋本町駅 徒歩3分 地下鉄御堂筋線 本町駅 徒歩7分 |
||
| アクセス |
新大阪駅まで電車18分 大阪駅梅田駅まで電車12分 関西空港まで電車51分、車50分 伊丹空港まで車20分 高速入口:環状線高麗橋・信濃橋入口 |
||
| 設備詳細 |
|
||
| EV基数 | 2基 | 人荷EV基数 | - |
| こだわり条件 |
|
||
| 備考 | 天高2.6m~3.0m | ||




