おすすめポイント

日本生命今橋ビルは規制街区の中で、閑静な雰囲気を感じさせる公開空地があり淀屋橋エリアを代表する大型ビルです。江戸時代に緒方洪庵が開いた「適塾」に隣接。既成街区で適塾と調和させる為ベージュのタイルで外観を落ち着いた印象にし公開空地にも配慮しています。
- この物件の賃料の価格帯(共益費込)
- 相談
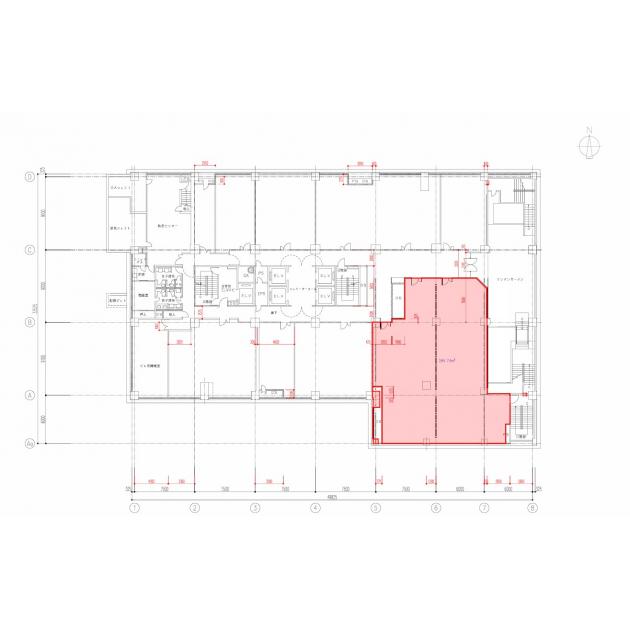
- 坪数(m2)
- 85.22坪(281.72m²)
※賃料はこの物件の価格帯を表示しています。保証金・賃料等の交渉目安はご相談ください!
ストリートビューを表示 ▼
物件概要 アイコンについて
| 物件名 | 日本生命今橋 | ||
|---|---|---|---|
| 住所 | 大阪府大阪市中央区今橋3丁目1番7号 | ||
| 構造 (規模) | 鉄骨造地上14階地下2階塔屋2階建 | ||
| 坪数 | 85.22坪(281.72m²) | 築年月 | 1985年9月1日 |
| 階数 | 地下1階 | 空調タイプ | 個別 |
| 保証金 | - | ||
| 敷金 | 相談 | 礼金 | - |
| 沿線・最寄駅 |
地下鉄御堂筋線 淀屋橋駅 徒歩2分 京阪線(本線・中之島線) 淀屋橋駅 徒歩2分 地下鉄堺筋線 北浜駅 徒歩4分 |
||
| アクセス |
新大阪駅まで電車12分 大阪駅梅田駅まで電車7分 関西空港まで電車53分、車56分 伊丹空港まで車25分 高速入口:環状線高麗橋入口 |
||
| 設備詳細 |
|
||
| EV基数 | 4基 | 人荷EV基数 | 1基 |
| こだわり条件 |
|
||
| 備考 | ・駅近・角ビル ・新耐震基準適合・エレベーター5基 ・駐輪場有り・2010年リニューアル済み ・分割対応も可能 |
||
日本生命今橋のその他の募集階
| 階数 | 坪数 (m²数) |
賃料の価格帯 | 保証金 | 敷金 礼金 |
|---|
※賃料はこの物件の価格帯を表示しています。詳しい情報は電話・メールでお問い合わせください!




