おすすめポイント

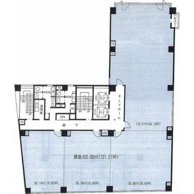
入商八木ビルは北浜駅徒歩1分の堺筋からも見える立地にあるビル。基準階面積が122坪でありながら約19坪~分割ができるので希望面積にフレキシブルな対応ができます。エレベーターは2基あり、混雑する時間帯ももストレスなくご利用頂けます。地下1階には管理人さんも常駐し、とても親切にご対応頂いています。
- この物件の賃料の価格帯(共益費込)
- @12,001円/坪~@15,000円/坪
- 坪数(m2)
- 121.27坪(400.89m²)
※賃料はこの物件の価格帯を表示しています。保証金・賃料等の交渉目安はご相談ください!
ストリートビューを表示 ▼
物件概要 アイコンについて
| 物件名 | 入商八木 | ||
|---|---|---|---|
| 住所 | 大阪府大阪市中央区北浜2丁目3番9号 | ||
| 構造 (規模) | 鉄骨鉄筋コンクリート造地上10階地下1階建 | ||
| 坪数 | 121.27坪(400.89m²) | 築年月 | 1990年5月1日 |
| 階数 | 5階 | 空調タイプ | 個別 |
| 保証金 | 相談 | ||
| 敷金 | - | 礼金 | - |
| 沿線・最寄駅 |
地下鉄堺筋線 北浜駅 徒歩1分 京阪線(本線・中之島線) 北浜駅 徒歩1分 地下鉄御堂筋線 淀屋橋駅 徒歩4分 |
||
| アクセス |
新大阪駅まで電車12分 大阪駅梅田駅まで電車7分 関西空港まで電車51分、車46分 伊丹空港まで車25分 高速入口:環状線高麗橋入口 |
||
| 設備詳細 |
|
||
| EV基数 | 2基 | 人荷EV基数 | - |
| こだわり条件 |
|
||
| 備考 | ・駅近・大通り沿い ・新耐震基準適合・南北両方採光有り ・管理人常駐 |
||
入商八木のその他の募集階
| 階数 | 坪数 (m²数) |
賃料の価格帯 | 保証金 | 敷金 礼金 |
|---|
※賃料はこの物件の価格帯を表示しています。詳しい情報は電話・メールでお問い合わせください!




