新大阪第2ドイ
物件番号:D101204
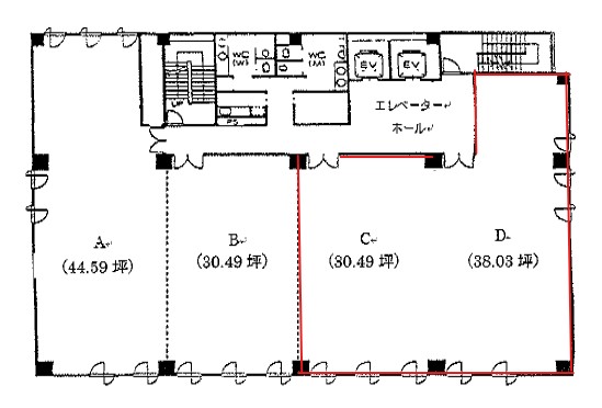
3階68.52坪

- 周辺地図を表示/非表示
-
- この物件の賃料の価格帯(共益費込)
- 坪@12,001円~@15,000円
| 物件名 | 新大阪第2ドイ 【このビルのその他の募集階】 |
||
|---|---|---|---|
| 住所 | 大阪府大阪市淀川区西中島2丁目14番6号 新大阪・西中島でよく検索されるその他の物件 |
||
| 構造(規模) | 鉄骨鉄筋コンクリート造地上9階地下1階建 | ||
| 築年月 | 1990年9月1日 | ||
| 坪数 | 68.52坪 | ||
| 階数 | 3階C+D | ||
| 保証金 | 総額6,852,000円(@100,000円/坪) | ||
| 敷金 | - | ||
| 礼金 | - | ||
| 沿線・最寄駅 |
地下鉄御堂筋線 西中島南方駅 徒歩3分 (西中島南方駅の賃貸事務所) 地下鉄御堂筋線 新大阪駅 徒歩10分 (新大阪駅の賃貸事務所) JR東海道本線 新大阪駅 徒歩10分 (新大阪駅の賃貸事務所) |
||
| アクセス | 新大阪駅まで電車5分 大阪駅梅田駅まで電車11分 関西空港まで電車64分、車50分 伊丹空港まで車20分 高速入口:11号線加島入口 |
||
| EV基数 | 2基 | 人荷EV基数 | - |
| 空調タイプ | 個別 | ||
| 備考 | 新耐震基準適合。地下鉄御堂筋線の西中島南方駅から徒歩3分。基準階面積100坪を超える大型ビル。 | ||

御堂筋線西中島南方駅の南口改札から出てすぐ、視認性の良い大通りに面した管理良好物件。重厚感ある外観とエントランス、エレベーター2基で設備も充実しています。基準階面積は約150坪の大型ビルで、30坪台からの貸室の提供が可能。
- お電話でお問い合わせ(無料)
-
平日13時までのお問い合わせで
当日に物件をご紹介!
お電話の場合「物件番号:D101204」
をお伝えください
類似物件のご紹介
新大阪・西中島エリアの
貸し事務所、賃貸オフィス一覧を見る>>
