グラングリーン大阪パークタワー
物件番号:C506108
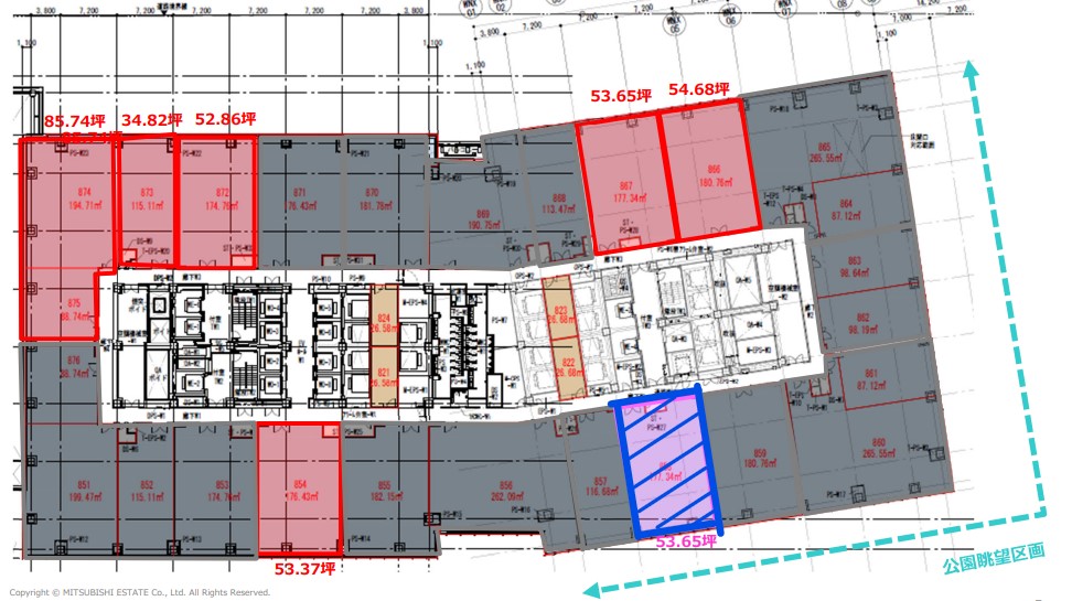
            8階53.65坪

- 周辺地図を表示/非表示
 - 
                
 
- この物件の賃料の価格帯(共益費込)
 - 相談
 
| 物件名 | グラングリーン大阪パークタワー 【このビルのその他の募集階】 
  | 
            ||
|---|---|---|---|
| 住所 | 大阪府大阪市北区大深町5番54号 梅田でよく検索されるその他の物件  | 
            ||
| 構造(規模) | 地上27階地下2階建 | ||
| 築年月 | 2025年 | ||
| 坪数 | 53.65坪 | ||
| 階数 | 8階 | ||
| 保証金 | 相談 | ||
| 敷金 | - | ||
| 礼金 | - | ||
| 沿線・最寄駅 | 
                                            JR大阪環状線 大阪駅 徒歩1分                                                    (大阪駅の賃貸事務所) 地下鉄四つ橋線 西梅田駅 徒歩6分 (西梅田駅の賃貸事務所)  | 
            ||
| アクセス | 新大阪駅まで電車7分 大阪駅梅田駅まで電車1分 関西空港まで電車60分、車45分 伊丹空港まで車20分 高速入口:環状線堂島・梅田入口  | 
            ||
| EV基数 | 22基 | 人荷EV基数 | - | 
| 空調タイプ | 個別 | ||
| 備考 | ・天井高:2,800㎜ ・床過重:500kg/㎡(ヘビーデューティゾーン800kg/㎡) ・OA100㎜・電源容量50VA/㎡ ・給排水設備 ・非常用発電機(72時間)  | 
            ||

うめきた1期「グランフロント大阪」に続く2期開発計画です。
ワーカーの多様な働き方に対応するため、
充実したオフィスサポート機能に加え、イベント空間や憩いの場が整備されます。
低層階には緑と融合した商業施設を設備し、
西棟上階には5つ星ホテル、東棟にはワーカーをはじめ幅広い層を対象とした
都市型ホテルを導入予定ですのでエリアの拠点性がさらに高まります。
多様な機能と豊かな緑が次世代のワークスタイルをサポートします。
- お電話でお問い合わせ(無料)
 - 
                
                
平日13時までのお問い合わせで
当日に物件をご紹介! 
お電話の場合「物件番号:C506108」
をお伝えください
