WAKITA藤村御堂筋
物件番号:A104402
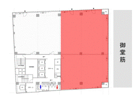
6階121.01坪

- 周辺地図を表示/非表示
-
- この物件の賃料の価格帯(共益費込)
- 坪@15,001円~@20,000円
| 物件名 | WAKITA藤村御堂筋 【このビルのその他の募集階】 |
||
|---|---|---|---|
| 住所 | 大阪府大阪市中央区伏見町4丁目2番14号 淀屋橋・北浜でよく検索されるその他の物件 |
||
| 構造(規模) | 鉄骨造・鉄骨鉄筋コンクリート造地上11階地下2階建 | ||
| 築年月 | 1990年11月1日 | ||
| 坪数 | 121.01坪 | ||
| 階数 | 6階603 | ||
| 保証金 | |||
| 敷金 | 賃料の10カ月分 | ||
| 礼金 | - | ||
| 沿線・最寄駅 |
地下鉄御堂筋線 淀屋橋駅 徒歩1分 (淀屋橋駅の賃貸事務所) 京阪線(本線・中之島線) 淀屋橋駅 徒歩4分 (淀屋橋駅の賃貸事務所) 地下鉄四つ橋線 肥後橋駅 徒歩5分 (肥後橋駅の賃貸事務所) |
||
| アクセス | 新大阪駅まで電車11分 大阪駅梅田駅まで電車6分 関西空港まで電車52分、車46分 伊丹空港まで車26分 高速入口:環状線信濃橋入口 |
||
| EV基数 | 3基 | 人荷EV基数 | 1基 |
| 空調タイプ | 集中+個別 | ||
| 備考 | ・駅近・大通り沿い ・新耐震基準適合・エレベーター4基 ・2017年共用部リニューアル済み ・所定時間内の集中空調費は賃料に含む ・駐輪場有り |
||

WAKITA藤村御堂筋ビルは、大阪メトロ御堂筋線「淀屋橋駅」徒歩1分で御堂筋沿いに位置するビル。立地の説明がしやすいため、求人効果が抜群です。吹き抜けのアーチ型のエントランスと白を基調とした共用部がビルの高級感を印象付けています。また、貸室は30坪~180坪とバラエティーがありますので、様々なご要望にお応えできます。
- お電話でお問い合わせ(無料)
-
平日13時までのお問い合わせで
当日に物件をご紹介!
お電話の場合「物件番号:A104402」
をお伝えください
