本町コラボ
物件番号:A202411
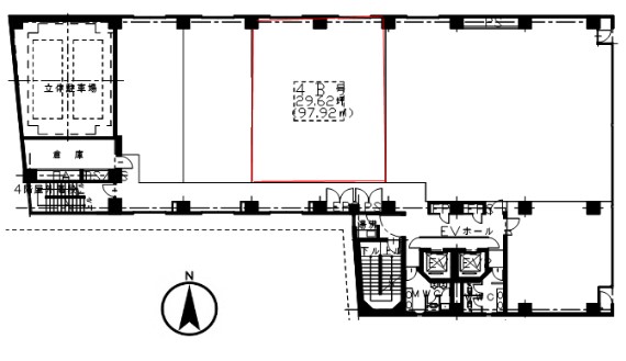
4階29.62坪

- 周辺地図を表示/非表示
-
- この物件の賃料の価格帯(共益費込)
- 坪@12,001円~@15,000円
| 物件名 | 本町コラボ 【このビルのその他の募集階】
|
||
|---|---|---|---|
| 住所 | 大阪府大阪市中央区北久宝寺町4丁目4番2号 本町・堺筋本町でよく検索されるその他の物件 |
||
| 構造(規模) | 鉄骨鉄筋コンクリート造地上9階建 | ||
| 築年月 | 1986年11月18日 | ||
| 坪数 | 29.62坪 | ||
| 階数 | 4階B | ||
| 保証金 | |||
| 敷金 | 相談 | ||
| 礼金 | - | ||
| 沿線・最寄駅 |
地下鉄御堂筋線 本町駅 徒歩3分 (本町駅の賃貸事務所) 地下鉄中央線 本町駅 徒歩3分 (本町駅の賃貸事務所) 地下鉄四つ橋線 本町駅 徒歩5分 (本町駅の賃貸事務所) |
||
| アクセス | 新大阪駅まで電車16分 大阪駅梅田駅まで電車10分 関西空港まで電車53分、車48分 伊丹空港まで車20分 高速入口:環状線信濃橋・阿波座・長堀 |
||
| EV基数 | 2基 | 人荷EV基数 | - |
| 空調タイプ | 個別 | ||
| 備考 | |||

大阪メトロ御堂筋線「本町駅」徒歩3分の好立地ビル。2018年に共用部を大幅リニューアル済み。大理石調のエントランスが重厚感のある落ち着いたオフィスビルです。貸室から南御堂の木々が見えますので、お仕事のブレイクタイムにも充実します。また、エレベーターが2基あり、駐車場も併設されていますのでビルスペックとしては申し分ないです。
- お電話でお問い合わせ(無料)
-
平日13時までのお問い合わせで
当日に物件をご紹介!
お電話の場合「物件番号:A202411」
をお伝えください
類似物件のご紹介
本町・堺筋本町エリアの
貸し事務所、賃貸オフィス一覧を見る>>
