イヨ
物件番号:A112410
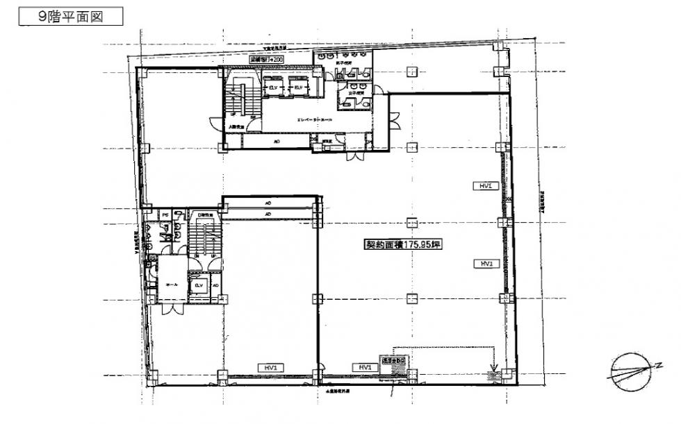
9階175.95坪

- 周辺地図を表示/非表示
-
- この物件の賃料の価格帯(共益費込)
- 坪@12,001円~@15,000円
| 物件名 | イヨ 【このビルのその他の募集階】 |
||
|---|---|---|---|
| 住所 | 大阪府大阪市中央区南本町4丁目2番21号 本町・堺筋本町でよく検索されるその他の物件 |
||
| 構造(規模) | 鉄骨鉄筋コンクリート造地上9階地下3階建 | ||
| 築年月 | 1965年1月1日 | ||
| 坪数 | 175.95坪 | ||
| 階数 | 9階 | ||
| 保証金 | |||
| 敷金 | 賃料の12カ月分 | ||
| 礼金 | - | ||
| 沿線・最寄駅 |
地下鉄御堂筋線 本町駅 徒歩1分 (本町駅の賃貸事務所) 地下鉄中央線 本町駅 徒歩1分 (本町駅の賃貸事務所) 地下鉄四つ橋線 本町駅 徒歩4分 (本町駅の賃貸事務所) |
||
| アクセス | 新大阪駅まで電車15分 大阪駅梅田駅まで電車9分 関西空港まで電車48分、車41分 伊丹空港まで車20分 高速入口:環状線信濃橋・阿波座入口 |
||
| EV基数 | 2基 | 人荷EV基数 | - |
| 空調タイプ | 個別 | ||
| 備考 | |||

御堂筋に面する基準階面積200坪を超える大型ビル。1階の「伊予銀行」が目印。エントランスホールは石貼りで重厚感があります。耐震補強工事も完了していますので、ご安心してご入居頂けます。企業イメージを気にされる方にもおすすめのビルです。
- お電話でお問い合わせ(無料)
-
平日13時までのお問い合わせで
当日に物件をご紹介!
お電話の場合「物件番号:A112410」
をお伝えください
類似物件のご紹介
本町・堺筋本町エリアの
貸し事務所、賃貸オフィス一覧を見る>>
