四ツ橋グランド(旧ニッケ四ツ橋)
物件番号:B203108
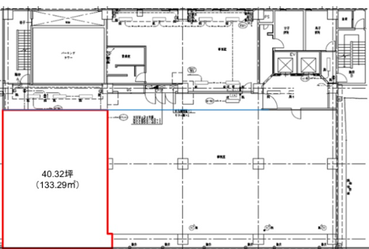
7階40.32坪

- 周辺地図を表示/非表示
-
- この物件の賃料の価格帯(共益費込)
- 坪@12,001円~@15,000円
| 物件名 | 四ツ橋グランド(旧ニッケ四ツ橋) 【このビルのその他の募集階】 |
||
|---|---|---|---|
| 住所 | 大阪府大阪市西区新町1丁目4番26号 四ツ橋でよく検索されるその他の物件 |
||
| 構造(規模) | 鉄筋コンクリート造地上10階建 | ||
| 築年月 | 1973年11月1日 | ||
| 坪数 | 40.32坪 | ||
| 階数 | 7階事務所 | ||
| 保証金 | |||
| 敷金 | 賃料の10カ月分 | ||
| 礼金 | - | ||
| 沿線・最寄駅 |
地下鉄四つ橋線 四ツ橋駅 徒歩1分 (四ツ橋駅の賃貸事務所) 地下鉄長堀鶴見緑地線 心斎橋駅 徒歩2分 (心斎橋駅の賃貸事務所) 地下鉄御堂筋線 心斎橋駅 徒歩3分 (心斎橋駅の賃貸事務所) |
||
| アクセス | 新大阪駅まで電車15分 大阪駅梅田駅まで電車9分 関西空港まで電車50分、車40分 伊丹空港まで車20分 高速入口:環状線信濃橋・阿波座・四ツ橋入口 |
||
| EV基数 | 2基 | 人荷EV基数 | - |
| 空調タイプ | 個別 | ||
| 備考 | |||

大通り面す大型ビル、駅近、広々エントランス
- お電話でお問い合わせ(無料)
-
平日13時までのお問い合わせで
当日に物件をご紹介!
お電話の場合「物件番号:B203108」
をお伝えください
