マルイト難波
物件番号:F102101
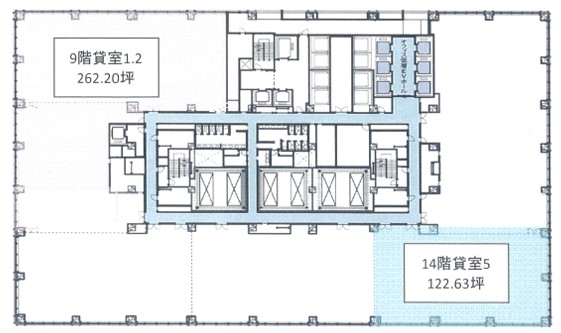
9階262.2坪

- 周辺地図を表示/非表示
-
- この物件の賃料の価格帯(共益費込)
- 坪@15,001円~@20,000円
| 物件名 | マルイト難波 【このビルのその他の募集階】 |
||
|---|---|---|---|
| 住所 | 大阪府大阪市浪速区湊町1丁目2番3号 なんば・日本橋でよく検索されるその他の物件 |
||
| 構造(規模) | 鉄骨鉄筋コンクリート造地上31階地下1階建 | ||
| 築年月 | 2009年8月1日 | ||
| 坪数 | 262.2坪 | ||
| 階数 | 9階1+2 | ||
| 保証金 | |||
| 敷金 | 賃料の12カ月分 | ||
| 礼金 | - | ||
| 沿線・最寄駅 |
JR大和路線 JR難波駅 徒歩1分 (JR難波駅の賃貸事務所) 地下鉄四つ橋線 なんば駅 徒歩3分 (なんば駅の賃貸事務所) 近鉄線 大阪難波駅 徒歩3分 (大阪難波駅の賃貸事務所) |
||
| アクセス | 新大阪駅まで電車15分 大阪駅梅田駅まで電車10分 関西空港まで電車50分、車36分 伊丹空港まで車17分 高速入口:環状線汐見橋・湊町 |
||
| EV基数 | 10基 | 人荷EV基数 | 2基 |
| 空調タイプ | 個別 | ||
| 備考 | |||

交通ターミナルの優れたロケーションと機能的で効率の良いワークスペースを兼ね備え、難波の新たなランドマークとなる次世代オフィスビル。
- お電話でお問い合わせ(無料)
-
平日13時までのお問い合わせで
当日に物件をご紹介!
お電話の場合「物件番号:F102101」
をお伝えください
類似物件のご紹介
なんば・日本橋エリアの
貸し事務所、賃貸オフィス一覧を見る>>
