梅田パーク
物件番号:C203012
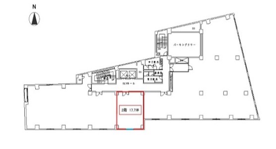
2階17.7坪

- 周辺地図を表示/非表示
-
- この物件の賃料の価格帯(共益費込)
- 坪@12,001円~@15,000円
| 物件名 | 梅田パーク 【このビルのその他の募集階】 |
||
|---|---|---|---|
| 住所 | 大阪府大阪市北区野崎町7番8号 梅田でよく検索されるその他の物件 |
||
| 構造(規模) | 鉄骨鉄筋コンクリート造地上9階地下1階建 | ||
| 築年月 | 1976年5月1日 | ||
| 坪数 | 17.7坪 | ||
| 階数 | 2階 | ||
| 保証金 | |||
| 敷金 | 賃料の10カ月分 | ||
| 礼金 | - | ||
| 沿線・最寄駅 |
地下鉄堺筋線 扇町駅 徒歩6分 (扇町駅の賃貸事務所) 地下鉄谷町線 南森町駅 徒歩5分 (南森町駅の賃貸事務所) 地下鉄谷町線 東梅田駅 徒歩8分 (東梅田駅の賃貸事務所) |
||
| アクセス | 新大阪駅まで電車18分 大阪駅梅田駅まで電車12分 関西空港まで電車59分、車45分 伊丹空港まで車20分 高速入口:環状線南森町・扇町入口 |
||
| EV基数 | 2基 | 人荷EV基数 | - |
| 空調タイプ | 個別 | ||
| 備考 | |||

丸紅不動産所有の管理の行き届いた清潔感のあるオフィスです。共用部リニューアル済みで耐震工事済みです。
- お電話でお問い合わせ(無料)
-
平日13時までのお問い合わせで
当日に物件をご紹介!
お電話の場合「物件番号:C203012」
をお伝えください
