JMFビル西本町01(旧MID西本町)
物件番号:B201144
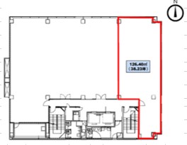
8階50.78坪

- 周辺地図を表示/非表示
-
- この物件の賃料の価格帯(共益費込)
- 坪@12,001円~@15,000円
| 物件名 | JMFビル西本町01(旧MID西本町) 【このビルのその他の募集階】
|
||
|---|---|---|---|
| 住所 | 大阪府大阪市西区阿波座1丁目6番1号 肥後橋・本町でよく検索されるその他の物件 |
||
| 構造(規模) | 鉄骨・鉄筋コンクリート造地上9階地下3階建 | ||
| 築年月 | 1989年5月1日 | ||
| 坪数 | 50.78坪 | ||
| 階数 | 8階 | ||
| 保証金 | |||
| 敷金 | 賃料の12カ月分 | ||
| 礼金 | - | ||
| 沿線・最寄駅 |
地下鉄四つ橋線 本町駅 徒歩1分 (本町駅の賃貸事務所) 地下鉄中央線 本町駅 徒歩2分 (本町駅の賃貸事務所) 地下鉄御堂筋線 本町駅 徒歩3分 (本町駅の賃貸事務所) |
||
| アクセス | 新大阪駅まで電車15分 大阪駅梅田駅まで電車9分 関西空港まで電車56分、車45分 伊丹空港まで車20分 高速入口:環状線信濃橋・阿波座入口 |
||
| EV基数 | 2基 | 人荷EV基数 | - |
| 空調タイプ | 個別 | ||
| 備考 | |||

四ツ橋筋と中央大通りの交差点の好立地。
- お電話でお問い合わせ(無料)
-
平日13時までのお問い合わせで
当日に物件をご紹介!
お電話の場合「物件番号:B201144」
をお伝えください
