本町武田
物件番号:A201306
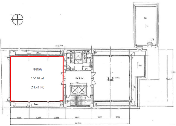
10階51.42坪

- 周辺地図を表示/非表示
-
- この物件の賃料の価格帯(共益費込)
- 相談
| 物件名 | 本町武田 【このビルのその他の募集階】 |
||
|---|---|---|---|
| 住所 | 大阪府大阪市中央区久太郎町3丁目1番29号 本町・堺筋本町でよく検索されるその他の物件 |
||
| 構造(規模) | 鉄骨鉄筋コンクリート・鉄筋コンクリート・鉄骨造地上10階地下2階建 | ||
| 築年月 | 1988年1月31日 | ||
| 坪数 | 51.42坪 | ||
| 階数 | 10階北 | ||
| 保証金 | |||
| 敷金 | - | ||
| 礼金 | - | ||
| 沿線・最寄駅 |
地下鉄御堂筋線 本町駅 徒歩3分 (本町駅の賃貸事務所) 地下鉄中央線 本町駅 徒歩3分 (本町駅の賃貸事務所) 地下鉄堺筋線 堺筋本町駅 徒歩4分 (堺筋本町駅の賃貸事務所) |
||
| アクセス | 新大阪駅まで電車15分 大阪駅梅田駅まで電車9分 関西空港まで電車50分、車45分 伊丹空港まで車20分 高速入口:環状線信濃橋・阿波座・長堀 |
||
| EV基数 | 2基 | 人荷EV基数 | 1基 |
| 空調タイプ | 個別 | ||
| 備考 | |||

中央大通り沿いに建つ視認性良好物件。重厚な石張りの外観が特徴です。対照的にエントランスホールに続く廊下は照明を多く使用しポップな印象。もちろん管理も良好で、駅からのアクセスも良く機動性も優れています。
- お電話でお問い合わせ(無料)
-
平日13時までのお問い合わせで
当日に物件をご紹介!
お電話の場合「物件番号:A201306」
をお伝えください
類似物件のご紹介
本町・堺筋本町エリアの
貸し事務所、賃貸オフィス一覧を見る>>
