大型ビル貸事務所

平日13時までのお問合せで当日に物件をご紹介!

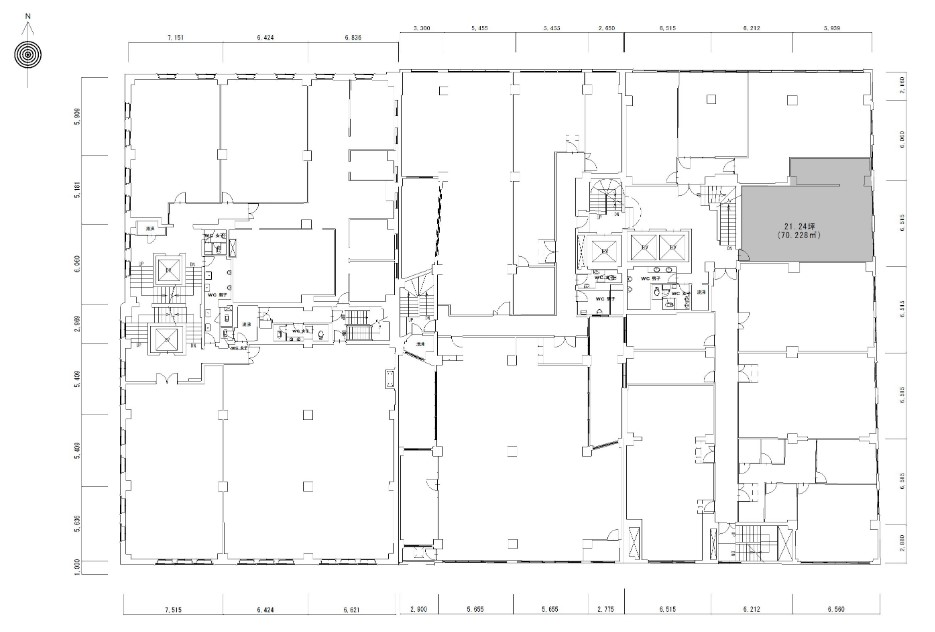
トヤマ新館(新トヤマ)

物件番号:A110121
3階21.24坪

周辺地図を表示/非表示
この物件の賃料の価格帯(共益費込)
@8,001円~@12,000
物件名 トヤマ新館(新トヤマ)
【このビルのその他の募集階】
    なし
住所 大阪府大阪市中央区安土町1丁目7番20号
本町・堺筋本町でよく検索されるその他の物件
構造(規模) 鉄筋コンクリート造地上9階地下1階建
築年月 1958年1月1日
坪数 21.24坪
階数 3階
保証金 相談
敷金
礼金
沿線・最寄駅 地下鉄堺筋線 堺筋本町駅 徒歩1分 (堺筋本町駅の賃貸事務所
地下鉄中央線 堺筋本町駅 徒歩3分 (堺筋本町駅の賃貸事務所
地下鉄御堂筋線 本町駅 徒歩7分 (本町駅の賃貸事務所
アクセス 新大阪駅まで電車18分
大阪駅梅田駅まで電車12分
関西空港まで電車52分、車51分
伊丹空港まで車20分
高速入口:環状線高麗橋・信濃橋・阿波座
設備詳細を見る
  • セキュリティセキュリティ
  • OAフロアOAフロア
  • 駐車場駐車場
  • 駐輪場駐輪場
  • 光ケーブル光ケーブル
  • エレベーターエレベーター
  • 人荷用EV人荷用EV
  • 天井高2.6m以上天井高2.6m以上
  • シャワートイレシャワートイレ
  • 室内水周り室内水周り
  • オートロックオートロック
  • 貸会議室完備貸会議室完備
  • 喫煙スペース喫煙スペース完備
  • 休憩コーナー休憩コーナー完備
  • 非常用電源非常用電源完備
EV基数 2基 人荷EV基数
空調タイプ 個別
目的・ビルの特徴を見る
  • 駅上・駅近(2分以内)物件駅上・駅近(2分以内)物件
  • 大通り沿い大通り沿い
  • Aクラス(基準階面積200坪以上HG物件)Aクラス(基準階面積200坪以上のHG物件)
  • 新築(築5年以内)新築(築5年以内)
  • 築浅(築5~10年以内)築浅(築5~10年以内)
  • 大型物件(基準階面積100坪以上)大型物件(基準階面積100坪以上)
  • デザイナーズ・レトロ・個性派物件デザイナーズ・レトロ・個性派物件
  • 1フロア1テナント1フロア1テナント物件
  • 1棟貸し・セット貸し1棟貸し・セット貸し物件
  • 保証金・敷金0or格安物件保証金・敷金0or格安物件
  • 賃料に空調費込む物件賃料に空調費含む物件
  • SOHO・マンションオフィスSOHO・マンションオフィス
  • 空中店舗物件空中店舗可能物件
  • 新耐震・新耐震基準適合新耐震・新耐震基準適合物件
  • 免震・制震・耐震対策物件免震・制震・耐震対策物件
  • 非常用電源対策非常用電源対策物件
  • 省エネ・環境対策省エネ・環境対策物件
  • 高層ビル(20階建以上)高層ビル(20階建以上)
  • 大型駐車場完備大型駐車場完備物件
  • 駐輪場完備駐輪場完備物件
  • 貸会議室完備貸会議室完備物件
  • 休憩コーナー完備休憩コーナー完備物件
  • 喫煙スペース喫煙スペース完備物件
備考 天高2.6m~3.0m

堺筋沿いに3棟隣接して建つオフィスビルのうちの1棟。広々と贅沢な空間をとったエントランスホールは大阪経済の歴史を感じるレトロな趣を残した造りになっています。ビジネス街の中心地に位置しながらもコストパフォーマンスが高く非常に経済的な物件です。

お電話でお問い合わせ(無料)

 0120-366-200

平日13時までのお問い合わせで
当日に物件をご紹介!

お電話の場合「物件番号:A110121」
をお伝えください

類似物件のご紹介

本町・堺筋本町エリアの
貸し事務所、賃貸オフィス一覧を見る>>